
25 Warna Masjid yang Membawa Kedamaian dan Keindahan Visual
Di banyak tempat, masjid bukan hanya berdiri sebagai pusat ibadah, tapi juga sebagai wajah dari ...

Di banyak tempat, masjid bukan hanya berdiri sebagai pusat ibadah, tapi juga sebagai wajah dari ...

Memiliki tanah adalah investasi yang menguntungkan, baik untuk tempat tinggal, usaha, atau bahkan sebagai aset ...

Merancang kitchen set minimalis dan bar table untuk dapur mungil adalah tantangan yang memerlukan kecermatan, ...

Ruang terbuka antara dapur dan ruang keluarga semakin diminati oleh pemilik hunian modern. Namun, ada ...

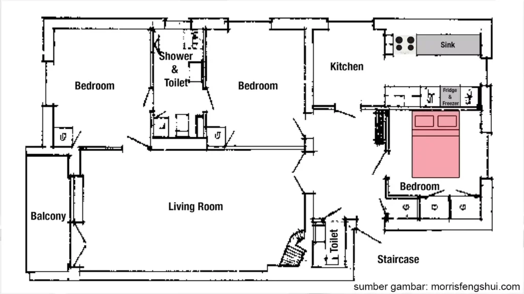
Posisi dapur yang baik menurut feng shui sangat berpengaruh terhadap rezeki, kesehatan, dan stabilitas pemilik ...

Dalam ajaran Islam, menjaga kebersihan serta mengatur tata letak rumah secara harmonis merupakan bagian yang ...

Memiliki dapur yang kecil memang bisa menjadi tantangan tersendiri. Namun, dengan pemilihan warna cat yang ...

Dapur merupakan pusat dari kesejahteraan dan kesehatan di rumah. Menurut feng shui, pemilihan warna cat ...

Memilih warna cat yang tepat membuat ruang terasa lebih nyaman dan inspiratif. Beberapa warna yang ...

Scroll down for detailed reviews of our top picks and take the first step towards ...

Rumah adalah tempat di mana kita menciptakan kenyamanan, menggambarkan kepribadian, dan mengekspresikan gaya hidup kita. ...